Onondaga County Tax Foreclosure Real Estate Auction: October 9, 2025 at 10AM
Location: Online Only at NYSAuctions.com. Bidding will open Tuesday, October 7 at 10AM 
Bidders Seminar: Watch NOW
 Quick Links:
Brochure
Removals
 Lead Based Paint Booklet
 Towns Contact Information
Fair Housing Notice
Property Showings: DO NOT TRESPASS, DRIVE BY ONLY
Internet Bidding Packet Please note: For bidding Approval, we will email you a Google form to complete. Then, Link to e-signature Internet Bidding Packet will be sent via email. Your online account Approval will update to Yes; when the auction opens for bidding on Tuesday, October 7.  
Auction Info
 Onondaga County Tax Foreclosure Real Estate Auction: October 9, 2025 at 10AM
Location: Online Only at NYSAuctions.com. Bidding will open Tuesday, October 7 at 10AM 
Bidders Seminar: Watch NOW
 Quick Links:
Brochure
Removals
 Lead Based Paint Booklet
 Towns Contact Information
Fair Housing Notice
Property Showings: DO NOT TRESPASS, DRIVE BY ONLY
Internet Bidding Packet Please note: For bidding Approval, we will email you a Google form to complete. Then, Link to e-signature Internet Bidding Packet will be sent via email. Your online account Approval will update to Yes; when the auction opens for bidding on Tuesday, October 7.  
Categories:
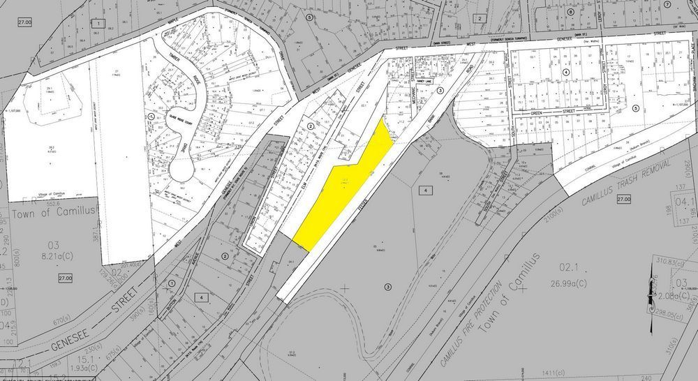
| Vacant commercial land. | 
| Tax Map #: 003.-03-02.2 | 
| Lot Size: 2.64 +/- Acre X | 
| School District: West Genesee CSD | 
| Full Market Value: $7101 | 
| Inspection: May not have road frontage. | 
| School Tax Due: $ | 
| Village Tax Due: $ | 
| County Tax Due: $ | 
| Down Payment Calculator | 
 
					 
					
				