Onondaga County Tax Foreclosure Real Estate Auction: October 9, 2025 at 10AM
Location: Online Only at NYSAuctions.com. Bidding will open Tuesday, October 7 at 10AM 
Bidders Seminar: Watch NOW

Quick Links:
Brochure
Removals
Lead Based Paint Booklet
Towns Contact Information
Fair Housing Notice
Property Showings: DO NOT TRESPASS, DRIVE BY ONLY
Internet Bidding Packet Please note: For bidding Approval, we will email you a Google form to complete. Then, Link to e-signature Internet Bidding Packet will be sent via email. Your online account Approval will update to Yes; when the auction opens for bidding on Tuesday, October 7.  

 

Auction Info

Onondaga County Tax Foreclosure Real Estate Auction: October 9, 2025 at 10AM
Location: Online Only at NYSAuctions.com. Bidding will open Tuesday, October 7 at 10AM 
Bidders Seminar: Watch NOW

Quick Links:
Brochure
Removals
Lead Based Paint Booklet
Towns Contact Information
Fair Housing Notice
Property Showings: DO NOT TRESPASS, DRIVE BY ONLY
Internet Bidding Packet Please note: For bidding Approval, we will email you a Google form to complete. Then, Link to e-signature Internet Bidding Packet will be sent via email. Your online account Approval will update to Yes; when the auction opens for bidding on Tuesday, October 7.  

 


Categories:
Vacant rural land.
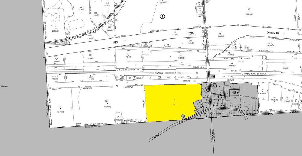
Tax Map #: 047.-02-17.4
Lot Size: 44.52 +/- Acre X
School District: Jordan-Elbridge CSD
Full Market Value: $47143
Inspection: Vacant Land. Drive by anytime.
School Tax Due: $
Village Tax Due: $
County Tax Due: $
Down Payment Calculator
 

Former Deed
Real Property Tax Service printout

Track this Item

More Details
Vacant rural land.
Tax Map #: 047.-02-17.4
Lot Size: 44.52 +/- Acre X
School District: Jordan-Elbridge CSD
Full Market Value: $47143
Inspection: Vacant Land. Drive by anytime.
School Tax Due: $
Village Tax Due: $
County Tax Due: $
Down Payment Calculator
 

Former Deed
Real Property Tax Service printout

Track this Item

High Bid:
$95,000.00 – lookingforhome

bidding history

Auction Type: One Lot
Quantity: 1

Bidding has closed on this lot